Haus-Konfigurator

Das Haus ERDOL 1 mit einer Fläche von 59 m² (90 m² in der Version mit nutzbarem Dachgeschoss) bietet seinen Bewohnern einen komfortablen Raum, in dem alles, was sie brauchen, vorhanden ist. Seine geringe Größe macht es einfach und kostengünstig in der Instandhaltung, was in Verbindung mit den modernen und ökologischen Lösungen, die bei seiner Konstruktion verwendet wurden, die Klarheit gibt, dass dieses Haus im Einklang mit der Natur geschaffen wurde.

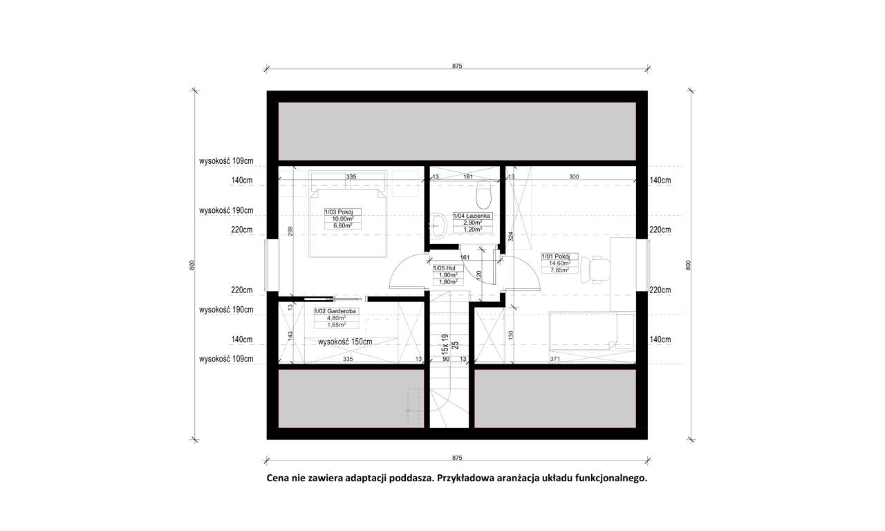
Es besteht die Möglichkeit, die Speisekammer als technischen Raum mit einem Eingang von der Seite des Vorraums zu nutzen - alle unsere Gebäude haben in der Wand von der Seite des Vorraums einen vorbereiteten Platz für die Montage der Tür, die nach der Entfernung der Paneele, die den Durchgang schließen, eingesetzt werden kann.

ERDOL 1 in der gewählten Konfiguration hat ein Modernes Satteldach mit nutzbarem Dachboden mit einem Neigungswinkel von 35 Grad und ist mit EUROCOLOR SYNEGO PVC-Tischlerarbeiten auf einem 80 mm breiten Profil der Marke REHAU in den Farben Winchester ausgestattet.

Konfigurieren Sie Ihr gewähltes Erdol HAUS
Dachflächenfenster Zwei Dachfenster(VELUX GLL 1061B FK06)
1992 € brutto
Fassade Styropor, Netz, Kleber
Im Preis inbegriffen
Insgesamt
93324 € brutto
(1025 € pro m²)
Sind Sie an unserem Angebot interessiert?
Brauchen Sie Hilfe oder einen Rat?
Rufen Sie unseren Berater unter Tel. +43 664 1477455
Was die ausgewählte Konfiguration enthält
Die ausgewählte Konfiguration beinhaltet
  1. Projektplanung, Hauspläne
  2. Vorgefertigte Außenwände mit vorbereiteten Steckdosen für die Elektroinstallation, Polystyrol-Isolierung, Netz und Kleber
  3. Vorgefertigte Innenwände im Erdgeschoss mit vorbereiteten Schächten für die Elektroinstallation
  4. Vollständige Dachkonstruktion, Zwischendecke ohne Dämmstoff
  5. Dacheindeckung - Betonziegel, Farbe anthrazit
  6. Galeco-2-Fallrohre
  7. Montage von vorgefertigten Wand- und Dachelementen
  8. 3-fach verglaste Fensterelemente inkl. Montage, Farbgebung entsprechend der im Konfigurator gewählten Option
  9. Zwei Raumdachfenster ( VELUX GLL 1061B FK06) mit Einbau
  10. Eingangstüren einschließlich Einbau. Farbgebung entsprechend der im Konfigurator gewählten Option
  11. Dacheindeckungen mit Dachrinnen und Fallrohre
Leistungen des Bauherren
  1. Positionierung des Hauses auf dem Grundstück
  2. Koordination Ihrer Baugenehmigung mit Partner-Architekten
  3. Übernahme der Bauleiterfunktion, Führung von einem Bautagebuch, etc.
  4. Vorbereitung der Fundamentplatte in Übereinstimmung mit dem Projekt und den Richtlinien des Bauunternehmens
  5. Elektrische Installation
  6. Klempnerarbeiten
  7. Zentrale Lüftungssystem (namhafte EU-Hersteller)
  8. Estrich
  9. Wärmepumpe als Heizungsanlage (namhafte EU-Hersteller)
  10. Schließen/Dämmen der Decke
  11. Dämmen der Zwischendecke
  12. Ausbau und Gestaltung des Dachbodens, d. h. Errichtung der Dachbodenbelüftung, des Fußbodens, der Trennwände, der Decken und der Dachschrägen, Installation der Elektro- und Sanitäranlagen
  13. Verputzen, Spachteln und Schleifen von Wänden und Decken
  14. Kauf und Einbau einer Treppe
  15. Fertigstellung - Anstrich der Wände, weiße Farbe
  16. Endgültiges Rendering der Fassade
  17. Äußere Verbindungen
  18. Gebäudeerdung (falls erforderlich)

Den Kunden, die sich für den Kauf von ERDOL HAUS entscheiden, wird auch Hilfe bei der Vorbereitung der Fundamentplatte angeboten. Dies ist ein sehr wichtiger Teil der Konstruktion, da es sich um das Fundament handelt, auf dem das gesamte Gebäude errichtet wird, weshalb auf eine ordnungsgemäße Ausführung geachtet werden sollte. Die Platte ist eine Alternative zu den traditionellen Fundamenten. Ihre Hauptvorteile sind definitiv die kürzere Ausführungszeit und die Wärmedämmung. Durch die Verwendung der Fundamentplatte beschleunigen sich auch die nachfolgenden Bauphasen - so wird es möglich, die Bauzeit um einige Wochen zu verkürzen.

ERDOL HAUS Hausvergleich
(Zum Vergrößern anklicken)
Siehe Konstruktion am Beispiel von ERDOL 3 XL
Wie der Bauprozess funktioniert
Vertrag
  • Bereitstellung der erforderlichen Unterlagen für einen Bauvertrag, d.h. Erschließungsbedingungen (WZ) oder örtlicher Entwicklungsplan (LEP).
  • Unterschreiben Sie den Vertrag und erhalten Sie bis zu 7 Monate Preisgarantie für den Hausbau.
  • Zahlen Sie die Kaution gemäß dem Vertrag.
Formalitäten
2-5 Monate
  • Erhalt der Entwurfsunterlagen (wir stellen Ihnen alle erforderlichen Entwürfe bis zu 45 Tage nach Vertragsabschluss und Zahlung der Anzahlung zur Verfügung).
  • Führen Sie eine Anpassung durch, d.h. lassen Sie den Entwurf des Hauses von einem entsprechend qualifizierten Fachmann auf das Grundstück übertragen.
  • Beantragen Sie eine Baugenehmigung oder erklären Sie den Bau im Falle eines "Hauses auf Antrag".
Bereitschaft
  • Schicken Sie uns eine Kopie der Baugenehmigung oder der Bauanzeige und teilen Sie uns mit, dass Sie bereit sind, mit den Arbeiten zu beginnen.
  • Bestätigen Sie Ihre finanzielle Bereitschaft zum Baubeginn.

* Sobald die oben genannten Punkte erfüllt sind, wird ein Zeitplan für den Bau festgelegt.

Bauzeit
2-4 Monate
  • Fundamentplatte – Zahlung für die Fertigstellung, sobald sie für fertig erklärt wird.

* Die Fertigstellung wird mindestens 3-4 Wochen vor der Installation des Gebäudes erfolgen.

  • Montage der Konstruktion in einem geschlossenen Zustand. Machen Sie die Zahlung und bis zu 10 Tage nach Abschluss der Arbeiten an der Fundamentplatte.

* Es wird uns etwa 3-7 Tage dauern, um das.

Fertigstellung
1-3 Monate
  • Interne Installationen: Elektrik, Sanitäranlagen, Heizung, mechanische Lüftung (Rekuperation).
  • Bauträgerzustand und Trockenbau.

* Der detaillierte Zeitplan für die Fertigstellung des Hauses muss je nach dem endgültigen Umfang der Arbeiten noch individuell vereinbart werden.

Beendigung der Bauarbeiten
  • Übergabe der As-Built-Dokumentation.
Erkunden Sie die Innenräume der Fertighäuser

Damit Sie sich das Projekt ERDOL HAUS genauer ansehen können, haben wir uns entschlossen, sein Aussehen zu visualisieren und haben für Sie einen virtuellen Rundgang vorbereitet, dank dessen Sie den Grundriss des Hauses und die Anordnung der einzelnen Räume kennenlernen können. Wir hoffen, dass diese Visualisierung unserer Designer für Sie eine hilfreiche Inspiration in der Phase der Fertigstellung des Gebäudes sein wird und Sie sich vorstellen können, wie schön das Leben in Ihrem eigenen Haus sein kann.

Spacer 3D
Laden...